当前位置:首页 > 图集 > 11SG102-3图集免费下载_11SG102-3图集在线查看

11SG102-3图集《钢吊车梁系统设计图平面表示方法和构造详图》适用于非抗震设计及抗震设防烈度为6~9度地区工业厂房和露天栈桥中的钢吊车梁系统设计。
11SG102-3图集包括钢吊车梁系统构件的平面表示方法制图规则和相关标准构造详图两部分内容。
11SG102-3图集钢吊车梁系统设计图平面表示方法是把吊车梁系统构件的截面尺寸及平面定位等,按一定的制图规则直接表达在吊车梁系统构件平面布置图上,与图集中的标准构造详图相配合,构成一套完整的吊车梁系统设计图,可大量缩减设计人员的绘图工作量。
目录
总说明
制图规则
吊车梁平法制图规则
吊车梁平法设计图示例
辅助桁架平法制图规则
辅助桁架平法设计图示例
水平支撑平法制图规则
水平支撑平法设计图示例
垂直支撑平法制图规则
垂直支撑平法设计图示例
制动板平法制图规则
制动板平法设计图示例
辅助构件
钢吊车梁系统设计图示例
构造详图
A型吊车梁详图
B型吊车梁详图
C型吊车梁详图
A/B/C型吊车梁悬挑详图
吊车梁剖面详图
FJ-XX-X(A/B)详图
FJ-XX-X(C/D)详图
辅助桁架节点详图
SC-XX-X(A/B)详图
SC-XX-X(C)详图
水平支撑节点详图
CC-X(A)详图
CC-X(B/C/D)详图
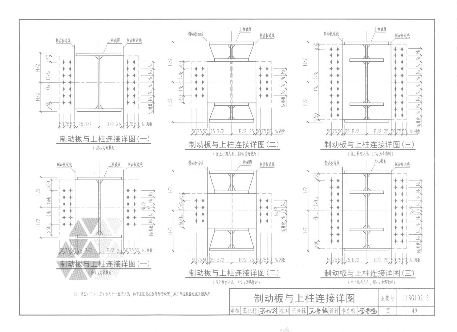
制动板与上柱连接详图
ZDB-X(A/B/C)详图
制动板节点详图
LB1/2-xx(L)详图
CB1/2-Xxxyy(b,d)详图
垂直隔板详图
焊接型轨道固定件平面示意图
焊接型轨道固定件选用表
螺栓型轨道联结示意图
车挡连接示意图
安装节点详图
相关技术资料