当前位置:首页 > 图集 > 12j003图集pdf在线查看_12j003图集免费下载

12J003图集《室外工程》国家建筑标准设计图集是对02J003《室外工程》的全面修编。12J003图集适用于新建、改建、扩建的民用与工业建筑室外工程。供建筑师及景观设计人员直接选用,由施工单位照图施工,也可供教学人员及相关专业学生参考使用。
图集主要编入室外工程常用的散水、坡道、台阶、栏杆、道路、挡墙、花池、水景、廊架、车棚、围墙、门柱等部分的构造详图。
12J003图集所编内容丰富,满足建筑设计、施工的需要,满足绿色环保的要求,采用新颖、美观的式样,在结构形式、建筑材料的选用上,充分考虑了多样性,工艺有特色,力求反映新技术、新构造。图集编入的内容按施工图深度编制,部分内容配置了相应的结构施工图,形成了完整的单体设计,构造合理、专业性强、方便使用。
12J003图集采用新的编排方式,部分内容尽量配上实例彩图,方便使用者直观选用。说明编制详尽,选用要点、边界条件明确,适用范围、使用环境及选用方法交代清晰。查阅方便、选用快捷。
目录
总说明
A散水坡道
散水
坡道构造
自行车坡道构造
坡道
B台阶栏杆
台阶
大台阶
踏步防滑
台阶挡墙
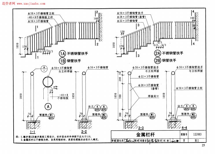
金属栏杆
金属栏板
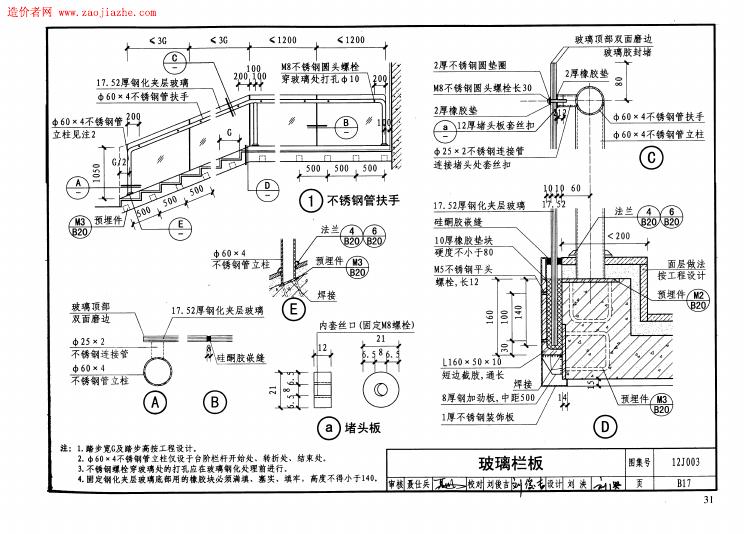
玻璃栏板
钢筋混凝土栏板
大台阶中间扶手
栏杆法兰、预埋件
C道路挡墙
小区路构造
路缘石
道路铺装样式
绿化停车场铺装样式
户外高耐竹材地板构造
道路广场常用铺装面材规格特性表
小挡墙
栏墙
路障
D花池水景
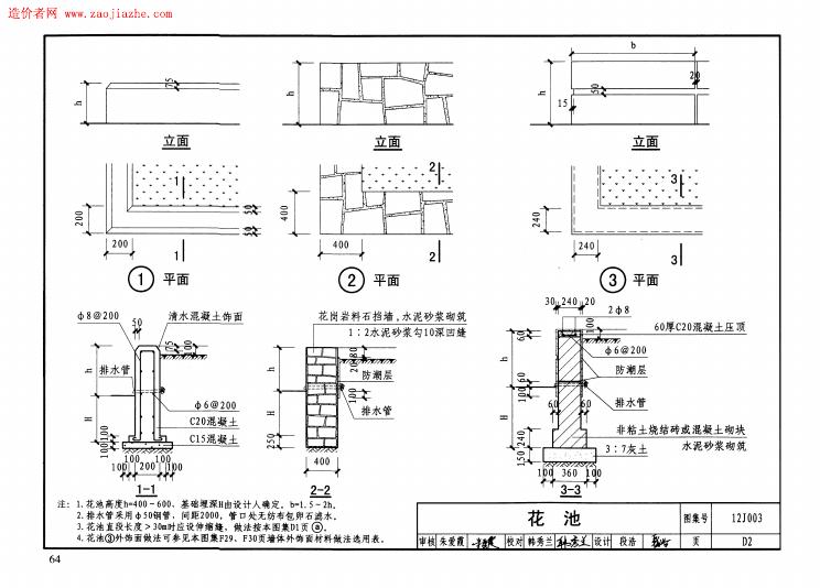
花池
与台阶结合的花池
与水景结合的花池
花池示例
树池
地下室顶板绿化
地下室通风井详图
小型水景
E廊架车棚
钢管廊架示例
木廊架示例
组合廊架示例
自行车棚
自行车架
锥形旗杆
旗杆顶
旗杆基础
F围墙门柱
混凝土砌块围墙
铁艺围墙
围墙基础、节点详图
钢丝网围墙
钢板围墙
木板围墙
户外高耐竹材墙板围墙
户外高耐竹材墙板围墙节点
围栏大门
围栏
围栏节点详图
门柱
门柱基础
门柱灯构造
墙体外饰面选用表
相关技术资料