当前位置:首页 > 图集 > 15j401图集电子版pdf免费下载_15j401图集在线查看

15j401图集是替代02J40102(02)J401
15j401图集,适用于新建、改建、扩建的工业与民用建筑工程。可供设计选用、制作及施工安装。
15j401图集主要内容包括:作业平台钢梯、钢梯及平台钢护栏、固定式钢斜梯、上屋面钢直梯、上屋面钢斜梯、上吊车钢斜梯、中柱式钢螺旋梯及板式钢螺旋梯。
15j401图集按照新的标准规范,对原图集02J401《钢梯》进行修编,提高了钢梯的安全性和经济性。增加了不锈钢钢梯、上屋面钢斜梯、坡度小的钢斜梯、上吊车梁的检修钢梯等内容,进一步扩大了适用范围。
15j401图集内容丰富、品种多样、构造详细、实用性强,能够满足设计和施工的需要。
目录
总说明
A作业平台钢梯
作业平台钢梯说明
35.5°钢斜梯T1A08、T1A10、T1B08、T1B10立面、剖面图
35.5°钢斜梯T1A08、T1A10、T1B08、T1B10详图
45°钢斜梯T2A06、T2A08、T2A10、T1B06、T2B08、T2B10立面、剖面图
45°钢斜梯T2A06、T2A08、T2A10、T1B06、T2B08、T2B10详图
59°钢斜梯T3A06、T3A08、T3B06、T3B08立面、剖面图
59°钢斜梯T3A06、T3A08、T3B06、T1B08详图
73°钢斜梯T4A06、T4B06立面、剖面图
73°钢斜梯T4A06、T4B06详图
35.5°钢斜梯T1C08、T1C10、T1D08、T1D10立面、剖面图
35.5°钢斜梯T1C08、T1C10、T1D08、T1D10详图
45°钢斜梯T2C06、T2C08、T2C10、T2D06、T2D08、T1D10立面、剖面图
45°钢斜梯T2C06、T2C08、T2C10、T2D06、T2D08、T1D10详图
59°钢斜梯T3C06、T3C08、T3D06、T3D08立面、剖面图
59°钢斜梯T3C06、T3C08、T3D06、T3D08详图
73°钢斜梯T4C06、T4D06立面、剖面图
73°钢斜梯T4C06、T4D06详图
35.5°钢斜梯T1E08、T1E10、T1F08、T1F10立面、剖面图
35.5°钢斜梯T1E08、T1E10、T1F08、T1F10详图
45°钢斜梯T2E06、T2E08、T2E10、T2F06、T2F08、T2F10立面、剖面图
45°钢斜梯T2E06、T2E08、T2E10、T2F06、T2F08、T2F10详图
59°钢斜梯T3E06、T3E08、T3F06、T3F08立面、剖面图
59°钢斜梯T3E06、T3E08、T3F06、T3F08详图
73°钢斜梯T4E06、T4F06立面、剖面图
73°钢斜梯T4E06、T4F06详图
90°钢直梯T506立面、剖面图
90°钢直梯T506详图
踏步板详图
钢斜梯预埋件详图
T1A08、T1A10材料表
T2A06、T2A08材料表
T2A10、T3A06材料表
T3A08、T4A06材料表
T1B08、T1B10材料表
T2B06、T2B08材料表
T2B10、T3B06材料表
T3B08、T4B06材料表
T1C08、T1C10材料表
T2C06、T2C08材料表
T2C10、T3C06材料表
T3C08、T4C06材料表
T1D08、T1D10材料表
T2D06、T2D08材料表
T2D10、T3D06材料表
T3D08、T4D06材料表
T1E08、T1E10材料表
T2E06、T2E08材料表
T2E10、T3E06材料表
T3E08、T4E06材料表
T1F08、T1F10材料表
T2F06、T2F08材料表
T2F10、T3F06材料表
T3F08、T4F06材料表
T506材料表
钢斜梯梯间平台类型图
钢斜梯梯间平台JTP-1、2详图
钢斜梯梯间平台JTP-3、4详图
钢斜梯梯间平台JTP-5详图
钢斜梯梯间平台材料表
B钢梯及平台钢护栏
钢梯及平台钢护栏说明
作业平台钢梯栏杆索引图
钢梯栏杆详图(用于钢板梯梁)
钢梯栏杆详图(用于槽钢梯梁)
作业平台钢护栏索引图
LG1型护栏详图
LG2型护栏详图
LG3型护栏详图
LG4型护栏详图
LG5型护栏详图
LG6型护栏详图
LG7型护栏详图
LG8型护栏详图
LG9型护栏详图
LG10型护栏详图
LG11型护栏详图
LG12型护栏详图
LG13型护栏详图
LG14型护栏详图
LG15型护栏详图
LG16型护栏详图
护栏门立面、剖面图
护栏门详图
护栏节点详图
C固定式钢斜梯
固定式钢斜梯说明
固定式钢斜梯详图
梯梁与支座连接节点详图
钢梯踏步及平台板详图
固定式钢斜梯选型及材料表
D上屋面钢直梯
上屋面钢直梯说明
上屋面WT1单段梯钢直梯选用图
上屋面WT2单段梯钢直梯选用图
上屋面WT3多段梯下上式钢直梯选用图
WT4梯间平台上屋面钢直梯选用图
WT5天窗端壁上屋面钢直梯
上屋面钢直梯Aa顶段详图(重型屋面)
上屋面钢直梯Aa顶段详图(轻型屋面)
上屋面钢直梯Ab顶段详图(重型屋面)
上屋面钢直梯Ab顶段详图(轻型屋面)
上屋面钢直梯Ab顶段详图(悬挑式)D14
上屋面钢直梯Ac顶段详图(重型屋面)
上屋面钢直梯Ac顶段详图(轻型屋面)
上屋面钢直梯及护笼详图
上屋面钢直梯B1-B3中段详图
上屋面钢直梯C1-C3下段详图
上屋面钢直梯梯间平台P1、P2详图
上屋面钢直梯梯间平台P1、P2抱柱钢架结构
上屋面WT3多段梯侧上式梯间平台示意图
上屋面钢直梯下上式及侧上式梯间平台
上屋面钢直梯材料表
E上吊辈钢斜梯
上吊车钢斜梯说明
中柱上吊车钢斜梯简图
边柱上吊车钢斜梯简图
绕柱上吊车钢斜梯简图(73°)
绕柱上吊车钢斜梯简图(59°)
上吊车平台SP-1、2详图
上吊车平台SP-3、4详图
上吊车中间平台ZP-1、2详图
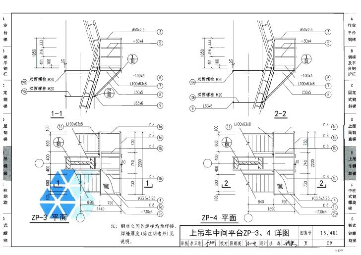
上吊车中间平台ZP-3,4详图
上吊车平台节点
上吊车驾驶室小梯A、B、C详图
上吊车平台SP-1~4材料表
上吊车中间平台ZP-1~4材料表
F中柱式钢螺旋梯
中柱式钢螺旋梯说明
中柱式钢螺旋梯ZWLT-27简图
中柱式钢螺旋梯ZWLT-28简图
中柱式钢螺旋梯ZWLT-29简图
中柱式钢螺旋梯ZWLT-30简图
中柱式钢螺旋梯ZWLT-33简图
中柱式钢螺旋梯ZWLT-36简图
中柱式钢螺旋梯ZWLT-42简图
中柱式钢螺旋梯ZWLT-48简图
中柱式钢螺旋梯ZWLT-54简图
中柱式钢螺旋梯ZWLT-60简图
中柱式钢螺旋梯ZNLT-27简图
中柱式钢螺旋梯ZNLT-28简图
中柱式钢螺旋梯ZNLT-29简图
中柱式钢螺旋梯ZNLT-30简图
中柱式钢螺旋梯ZNLT-33简图
中柱式钢螺旋梯ZNLT-36简图
中柱式钢螺旋梯ZNLT-39简图
中柱式钢螺旋梯ZNLT-42简图
中柱式钢螺旋梯ZNLT-48简图
中柱式钢螺旋梯ZNLT-54简图
中柱式钢螺旋梯ZNLT-60简图
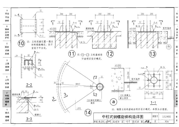
中柱式钢螺旋梯构造详图
中柱式钢螺旋梯TZ详图
中柱式钢螺旋梯TBl详图
中柱式钢螺旋梯TB2详图
中柱式钢螺旋梯LTP1详图
中柱式钢螺旋梯LTP2详图
中柱式钢螺旋梯LTP3详图
中柱式钢螺旋梯预埋件详图
中柱式钢螺旋梯ZWLT顶盖详图
中柱式钢螺旋梯ZWLT技术经济指标
中柱式钢螺旋梯ZNLT技术经济指标
G板式钢螺旋梯
板式钢螺旋梯说明
板式钢螺旋梯BLTA-4210、BLTA-4215简图
板式钢螺旋梯BLTA-4810、BLTA-4815简图
板式钢螺旋梯BLTA-5110、BLTA-5115简图
板式钢螺旋梯BLTA-5710、BLTA-5715简图
板式钢螺旋梯BLTA-6010、BLTA-6015简图
板式钢螺旋梯BLTB-5410、BLTB-5415简图
板式钢螺旋梯BLTB-6010、BLTB-6015简图
板式钢螺旋梯BLTB-6610、BLTB-6615简图
板式钢螺旋梯BLTB-7210、BLTB-7215简图
板式钢螺旋梯BLTB-7810、BLTB-7815简图
板式钢螺旋梯构造详图
板式钢螺旋梯踏步板材料表
板式钢螺旋梯挑台详图
板式钢螺旋梯明细表
板式钢螺旋梯材料表