当前位置:首页 > 图集 > 03G102图集免费下载_03G102图集高清pdf下载

03G102图集适用于钢结构设计图与施工详图的绘制。包括钢结构设计制图基本规定、钢结构设计制图阶段划分和深度、钢结构设计图及施工详图的绘制等内容,并提供了门式刚架轻型房屋、螺栓球节点网架、梯形钢屋架屋盖系统、立体网架屋盖、高层钢结构等五种典型结构设计图作为示例。
03G102图集以图文并茂、前后对应的解说方式,系统的介绍了钢结构设计图集施工详图的制图方法,对不太熟悉钢结构设计制图的人员来说,既是一本好的教材,也是一本钢结构设计制图方面的指导性文件。
03G102图集目录
03G102图集前言
钢结构制图基本规定(一)~(二)
钢结构设计制图阶段划分及深度(一)~(十一)
一、钢结构设计图的绘制总说明(一)~(三)
二、门式刚架轻型房屋钢结构设计图示例说明
锚栓布置图
支撑布置图
门式刚架及山墙柱布置图
檩条布置图
墙梁布置图
门式刚架
节点详图(一)
节点详图(二)
节点详图(三)
三、钢网架结构设计图示例
A.螺栓球节点网架设计图示例说明
螺栓球节点网架预埋件布置图
螺栓球节点网架平面图
螺栓球节点网架节点图
螺栓球节点网架内力图
螺栓球节点网架杆件截面图
螺栓球节点网节点装配图
B.焊接球节点网架设计图示例说明
焊接球节点网架预埋件布置图
焊接球节点网架平面图
焊接球节点网架节点详图
焊接球节点网架内力图
焊接球节点网架杆件布置图
四、梯形钢屋架屋盖系统设计图示例说明
锚栓平面布置图
屋架上弦支撑平面布置图
屋架下弦支撑平面布置图
檩条、拉条布置图
节点详图(一)
节点详图(二)
五、立体桁架屋盖设计图示例说明(一)~(二)
支座预埋件及抗风柱平面布置图
屋面结构布置图
屋面檩条和拉条布置图
立体桁架WJ1设计图(一)
立体桁架WJ1设计图(二)
CC1垂直支撑设计图
节点详图(一)
节点详图(二)
节点详图(三)
六、高层钢结构设计图示例说明(一)~(四)
地下室钢柱及钢柱脚平面布置图
地上部分柱子平面布置图
首层结构平面布置图
二层结构平面布置图
七层结构平面布置图
沿房屋横向竖向支撑立面布置图
沿房屋纵向竖向偏心支撑立面布置图
GKZ-1柱子设计图
柱梁截面选用表
框架梁柱刚接节点及连接件选用表
框架梁柱铰接节点及连接件选用表
柱脚节点详图
箱形梁与箱形柱的刚性连接节点
支撑节点详图
一、钢结构施工详图的绘制总说明(一)~(四)
二、门式刚架轻型房屋钢结构施工详图示例说明
锚栓布置图
支撑布置图
门式刚架及山墙柱布置图
檩条布置图
墙梁布置图
安装节点图(一)
安装节点图(二)
安装节点图(三)
安装节点图(四)
门式刚架GJ1详图
门式刚架GJ2详图
门式刚架GJ3详图
详图剖面
零件详图
山墙柱详图
撑杆、斜拉条和隅撑详图
水平支撑SC1和柱间支撑详图
檩条LT1~LT6详图
檩条GL1~GL4、WL1、WL2详图
墙梁QL1~QL6详图
墙梁QL7~QL12、门梁ML1详图
三、钢网架结构施工详图示例
A.螺栓球节点网架施工详图示例说明
螺栓球节点网架找坡支托平面图
螺栓球节点网架安装节点图
螺栓球节点网架构件编号图
螺栓球节点网架支座详图
螺栓球节点网架支托详图
螺栓球节点网架杆件详图(一)
螺栓球节点网架杆件详图(二)
螺栓球节点网架螺栓球详图(一)
螺栓球节点网架螺栓球详图(二)
螺栓球节点网架封板详图
螺栓球节点网架锥头和螺栓机构详图
螺栓球节点网架零件详图
B.焊接球节点网架施工详图示例说明
焊接球节点网架找坡支托和预埋件平面图
焊接球节点网架安装节点图
焊接球节点网架构件编号图
焊接球节点网架支座、支托和锚栓详图
焊接球节点网架杆件详图
焊接球节点网架空心球详图
四、梯形钢屋架屋盖系统施工详图示例说明
锚栓平面布置图
屋架上弦支撑平面布置图
屋架下弦支撑平面布置图
檩条平面布置图
安装节点图(一)
安装节点图(二)
屋架放大样(一)
屋架放大样(二)
屋架放大样(三)
屋架放大样(四)
屋架放大样(五)
屋架GWJ21-2详图(一)
屋架GWJ21-2详图(二)
屋架GWJ21-2详图(三)
竖向支撑CC1、CC3详图
竖向支撑CC2详图
上、下弦水平支撑详图
檩条、拉条、撑杆详图
五、立体桁架屋盖施工详图示例说明
支座预埋件平面布置图
屋面结构布置图
屋面檩条和拉条布置图
安装节点图(一)
安装节点图(二)
安装节点图(三)
立体桁架WJ1详图(一)
立体桁架WJ1详图(二)
立体桁架WJ2详图(一)
立体桁架WJ2详图(二)
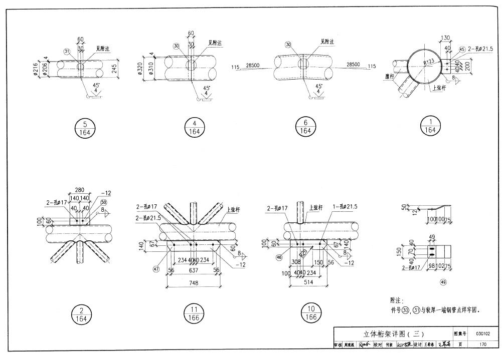
立体桁架详图(一)
立体桁架详图(二)
立体桁架详图(三)
CC1垂直支撑详图
檩条和拉条详图(一)
檩条和拉条详图(二)
上弦水平支撑详图
六、高层钢结构施工详图示例说明(一)~(四)
地下室柱脚平面布置图
首层结构平面布置图
二层结构平面布置图
七层结构平面布置图
二层水平隅撑和JC撑平面布置图
柱1GKZ-A5详图(一)
柱1GKZ-A5详图(二)
柱1GKZ-A5详图(三)
柱2GKZ-A5详图(一)
柱2GKZ-A5详图(二)
柱2GKZ-F5详图(一)
柱2GKZ-F5详图(二)
柱脚及锚栓加工图
(A)-(D)竖向支撑立面布置图
③-④竖向支撑立面布置图
首层梁详图
首层次梁详图
二层梁详图(一)
二层梁详图(二)
七层梁详图
七层次梁详图
二层水平隅撑材料表
支撑ZC-11详图
支撑ZC-1详图(一)
支撑ZC-1详图(二)
框架梁与柱刚接节点及连接件选用表
梁与梁或梁与柱铰接连接及连接件选用表
箱形梁与箱形柱的工地安装节点图
箱形柱的工地安装节点图
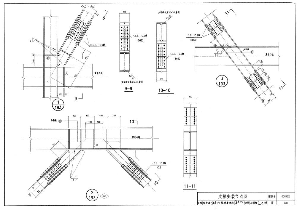
支撑安装节点图
悬挑梁加斜拉(压)杆安装节点图
水平隅撑安装节点图
SRC楼板连接构造
梁腹板孔口的补强节点图
楼梯GT1-1、GT1-2
附录A 钢材化学成分、力学性能
附录B 钢材强度及连接强度设计值
附录C 钢结构制造操作的空间要求
附录D 型钢连接螺栓最大孔径和间距
附录E 扳手空间尺寸
附录F 角钢的组合
附录G 钢板、槽钢、工字钢、角钢的螺栓连接形式
附录H 角焊缝及螺栓连接的承载力
附录K Q235钢/Q345钢锚栓选用表